Штриховка элементов
Данный способ узнать площадь штрихковки а AutoCAD наиболее гибкий и позволяет работать не только с простыми примитивами, но и с фигурами, состоящими из отрезков, мультилиний. Порядок действий такой:
- Заштриховать необходимые элементы. Штрихуемые фигуры должны быть замкнутыми, иначе потеряется ассоциативность штриховки.
Ассоциативность означает, что с изменением размеров элементов меняется и площадь штриховки. Но если произойдёт разрыв контура, то штриховка перестанет меняться, а значит и значение будет указано неверно. Поэтому нужно быть осторожным и для изменения объекта использовать опцию «Растянуть».
- Выделить штриховку и активировать вкладку «Свойства», нажав Ctrl+ 1.
- В подменю «Геометрия» будет указан размер заштрихованной области.
Все размеры указаны в мм 2 . Для удобства их можно перевести в м 2 .
Площадь в Автокаде как посчитать, измерить площадь фигур и штриховок

> Смотреть видео уроки AutoCAD >
В этом видео мы поговорим о том, как правильно посчитать, измерить или узнать площадь фигур, объектов или штриховок в Автокаде.
– Как посчитать площадь в Автокаде;
– Как увидеть площадь фигуры в AutoCAD;
– как легко вычислить или измерить площадь штриховок в Автокаде;
– Что делать, если Автокад не показывает площадь.
Приветствую дорогой читатель на нашем сайте. Сегодняшний урок будет посвящен вопросу площадей и их подсчетам. Предлагаю сразу преступить к ответу на вышеперечисленные вопросы. Все будет предельно просто и подано по шагам.
Вопрос 1. Как найти площадь любой замкнутой фигуры в Автокаде?
Шаг 1. Первое что нужно сделать, это просто выделить контур фигуры. Если фигура одна и она замкнута, следует кликнуть правую кнопку мыши и вызвать контекстное меню. В нем нам нужно выбрать “свойства”.
Шаг 2. В свойствах, нам нужно найти вкладку “геометрия”, нас интересует пункт “площадь”
Обратите внимание, что площадь указана в квадратных миллиметрах, поэтому значение такое большое
Шаг 3. Если нам нужно перевести значение площади в квадратные метры, то следует щелкнуть по числовому значению площади и когда появиться пиктограмма калькулятора, кликнуть уже по нему.
Шаг 4. В окне быстрого калькулятора, нужно раскрыть вкладку “преобразование единиц”.
Шаг 5. Теперь нам требуется найти строку “Преобразовать из…” раскрыть его и выбрать “миллиметры” в качестве исходной единицы измерения.
Шаг 6. В строке “Преобразовать в…” оставляем метры и сразу видим, что наше значение уже преобразовалось в метры квадратные.
Вопрос 2. Как найти площадь двух фигур в Автокаде?
К сожалению, стандартные свойства тут уже не помогут. Т.е. если Вы выделим два замкнутых объекта, нам не покажут сумму их площадей.
Шаг 1. Для того, чтобы измерить площади двух фигур сразу, требуется найти утилиту измерить, а в ней команду измерить площадь. Находиться она во вкладке “главная”, панель “утилиты”. Раскрыв панель “утилиты”, мы увидим команду “измерить”, раскрыв список уточняем, что мы хотим измерить, выбираем “площадь”.
Шаг 2. Выбрав команду “измерить площадь”, кликаем правой кнопкой мышки и в списке выбираем “добавить площадь”. Так же Вы можете выбрать эту команду в командой строке.
Шаг 3. Далее, нам нужно опять кликнуть правой кнопкой мышки или выбрать на командной строке пункт “объекты”, тем самым, нам не нужно будет обводить контуры объектов для вычисления площади, достаточно будет просто выделить оба объекта.
Примечание. Поверьте, обводить контур для поиска площади достаточно долгое занятие. А если нету опыта, можно сделать это и не с первой попытки. Куда проще выбрать объект и дело с концом.
Шаг 4. Теперь нам осталось выбрать контуры наших объектов, т.е. две наших замкнутых фигуры.
После выбора, объекты будут подсвечены зеленым цветом. Это означает, что мы все правильно сделали, а общую площадь можно посмотреть в командной строке.
Вопрос 3. Как найти площадь фигуры состоящая из нескольких элементов в Автокаде?
Допустим, у нас есть кирпичная несущая стена, которая состоит не из одного элемента (одной замкнутой полилинии), а скажем, из мультилинии и отрезка на торцах и наша задача узнать общую площадь этой стены. В таком случае, площадь лучше и проще считать через штриховки в Автокаде.
Шаг 1. Штрихуем наши несущие стены, выделяем штриховку и кликаем правой кнопкой мышки, выбираем “свойства”. Здесь нам опять интересует пункт “геометрия”, где в строке “площадь” будет указана общая площадь внутренней стены.
Примечание
Обратите пожалуйста внимание, на то, что: 1) Площадь тоже указана в квадратных миллиметрах. Для перевода в квадратные метры требуется разделить на 1.000.000. 2) Площадь отображается только тех стен, которые мы заштриховали
Т.е. внешние стены в расчет не брались
2) Площадь отображается только тех стен, которые мы заштриховали. Т.е. внешние стены в расчет не брались.
1
Предлагаю подвести итог!
Зачем нужно знать площадь? Для простых и сложных дальнейших расчетов. Для подсчета объемов материала или подсчета площади обустраиваемой территории или скажем, для подсчета площади будущей квартиры и занесения данных в экспликацию.
Команда “площадь” облегчает жизнь и экономит время и как Вы сами убедились, она очень проста в использовании и не требует спец знаний. Выбрали команду, выбрали объект и получили площадь в квадратных миллиметрах. А если нужно перевести, то это дело тоже двух минут и об этом мы тоже поговорили в этой статьей!
с друзьями этой статьей
Процесс расчета или измерения расстояний, углов, радиусов, площадей и периметров в AutoCAD
Как только вы загрузите это приложение и сможете им пользоваться, вы можете начать процесс ознакомление с вашими вариантами. Таким образом, вы узнаете, где находятся инструменты, перейдя на вкладку «Пуск» и найдя опцию «Утилиты» с различными типами инструментов.
Когда необходимо измерить расстояния, все, что вам нужно сделать, это нажать «Мера» и так начинается процесс. Чтобы измерить расстояние между двумя точками, выбирается инструмент «Расстояние», при этом необходимо выбрать первую точку с помощью мыши, а вторую на панели команд, таким образом найдя расстояние между двумя точками.
В случае расстояний, заданных несколькими точками, указывается первая точка. тогда пишется M на панели команд, чтобы начать выбор различных точек. Затем с помощью мыши выбираются другие точки, которые задают расстояние, в писать C на панели задач, когда будет достигнута последняя измеряемая точка.
Другой способ запустить команду для измерения расстояния — ввести в командной строке DIST
Важно то, что все, что будет сделано, будет рисунок, который измеряется , если неизвестно, в каких единицах он нарисован, его можно просмотреть, набрав UNITS на панели команд
В случае инструмента «Угол» можно измерить угол дуги, окружности или угла, образованного двумя линиями. Для этого достаточно обозначить объект (ы) которые ограничивают дугу, являясь опцией в меню инструментов.
Радиус можно измерять радиусы окружностей или дуг; Достаточно установить объект измерения. С этим, радиус и диаметр объекта который был выбран для измерения будет отображаться на панели команд .
На длине дуги вы можете использовать команду «Список», которую можно найти, введя «Пуск», «Свойства», затем «Список». Его также можно записать в командной строке LIST, чтобы он Полегче.
Зоны и периметры имеют столь же простую процедуру, что позволяет получить меры и инструменты внести желаемые изменения. Все возможно, если ты тоже хочешь вставить изображение без внешней ссылки , что позволяет упростить использование AutoCAD.
Нахождение площади области с вырезами на чертеже в AutoCAD
При работе с AutoCAD, инженерам и дизайнерам часто требуется находить площадь определенной области на чертеже. Однако, часто на чертеже могут присутствовать вырезы или дыры, которые нужно исключить из расчета площади. В этом разделе мы рассмотрим, как найти площадь области с вырезами на чертеже с помощью AutoCAD.
1. Загрузите чертеж в AutoCAD и убедитесь, что у вас есть все необходимые слои, объекты или блоки, которые составляют контур области, включая вырезы.
2. Выделите все объекты, которые составляют контур области (включая вырезы) с помощью команды «Выбрать» (Select) или командой «Полигон» (Polygon) и создайте полилинию или polyline. Удостоверьтесь, что все объекты объединены в одну полилинию.
3. Откройте окно «Свойства» (Properties) и выберите полилинию. Пропишите значение «AREA» в поле «Площадь» (Area) и нажмите «Enter». AutoCAD высчитает площадь области в единицах чертежа.
4. Если требуется найти площадь области в других единицах измерения (например, квадратных метрах), вам понадобится знать масштаб чертежа и коэффициент конверсии. Для этого необходимо сначала найти площадь в единицах чертежа, а затем умножить ее на масштабный коэффициент.
5. Если на чертеже присутствуют несколько вырезов или дыр, которые требуется исключить из расчета площади, вам придется рассчитать их площади по отдельности и вычесть эти значения из общей площади области.
Теперь вы знаете, как найти площадь области с вырезами на чертеже с помощью AutoCAD. Эта функция может быть полезна во многих областях проектирования и архитектуры, где точно измеренная площадь играет важную роль.
Вопрос 3. Как найти площадь фигуры состоящая из нескольких элементов в Автокаде?
Допустим, у нас есть кирпичная несущая стена, которая состоит не из одного элемента (одной замкнутой полилинии), а скажем, из мультилинии и отрезка на торцах и наша задача узнать общую площадь этой стены. В таком случае, площадь лучше и проще считать через штриховки в Автокаде.

Шаг 1. Штрихуем наши несущие стены, выделяем штриховку и кликаем правой кнопкой мышки, выбираем “свойства”. Здесь нам опять интересует пункт “геометрия”, где в строке “площадь” будет указана общая площадь внутренней стены.
Примечание
Обратите пожалуйста внимание, на то, что: 1) Площадь тоже указана в квадратных миллиметрах. Для перевода в квадратные метры требуется разделить на 1.000.000
2) Площадь отображается только тех стен, которые мы заштриховали. Т.е. внешние стены в расчет не брались.
1

Предлагаю подвести итог!
Зачем нужно знать площадь? Для простых и сложных дальнейших расчетов. Для подсчета объемов материала или подсчета площади обустраиваемой территории или скажем, для подсчета площади будущей квартиры и занесения данных в экспликацию.
Команда “площадь” облегчает жизнь и экономит время и как Вы сами убедились, она очень проста в использовании и не требует спец знаний. Выбрали команду, выбрали объект и получили площадь в квадратных миллиметрах. А если нужно перевести, то это дело тоже двух минут и об этом мы тоже поговорили в этой статьей!

Иногда пользователи, работающие с различными чертежами в программе AutoCAD, сталкиваются с необходимостью расчета площади отдельных или нескольких элементов. Осуществить это можно с помощью двух встроенных инструментов, каждый из которых работает по особому алгоритму и подойдет в разных ситуациях. Сегодня мы хотим продемонстрировать примеры взаимодействия с каждой из этих двух функций, чтобы вы смогли подобрать оптимальный для себя вариант и использовать его при надобности выполнения расчетов.
Сумма длин линий и площадей в Автокаде

Итак, представим себе тривиальную задачу — надо посчитать длину к примеру трубопроводов, или электрических кабелей, или дорожной разметки, в общем любых линейных объектов на плане.
Можно взять отдельные элементы на плане и, заглядывая в их свойства, последовательно сложить длины. Но согласитесь это утомительно, однообразно, и как-то неэффективно.
Можно воспользоваться стандартным инструментом _dataextraction, хотя он настолько универсален, что для решения такой простой задачи пусть и подходит, но результат вы получите не намного быстрее чем складывая вручную. Проще потратить пару минут, и раз и навсегда установить GeomProps.
В целом же, для решения подобных задач я использую прием суммирования длин линий по типу линий. Работает это следующим образом:
- Создать типы линий для каждого типа линейных объектов, с которыми будем работать. Это позволяет, во-первых, контролировать параметры отображения линии на плане, и быстро изменять его при необходимости, переписывая файл с линиями. Во вторых позволяет отфильтровать одни объекты от других, без использования слоёв. После чего с помощью SelSim мы сможем в один клик выбирать все аналогичные объекты на плане.
- Посчитаем сумму длин линий линейных объектов в AutoCAD, обратимся за помощью к GeomProps.
- И наконец, добавим небольшую ведомость с суммами длин в виде таблицы по типу линий с помощью небольшой лисп утилиты от Mac Lee — LenCal.
Сумма длин линий и площадей объектов Автокад с помощью GeomProps
Теперь разберемся с каждым пунктом немного подробнее:
1. Как создать свой тип линий в Автокаде?
Это необязательно, но знать полезно.
Типы линий в автокаде создаются с помощью простого текстового файла с расширением .lin, синтаксис которого весьма незамысловат. В простейшем случае:
*1.1,razmetka_1.1—————– A,1.0,1.0
Где в первой строке, после звездочки идет название типа линии и через запятую его текстовое превью, оно должно подсказать пользователю как примерно будет выглядеть тип линии.
Вторая строка начинается с буквы A, её смысл в описании синтаксиса заключается в том, что она обозначает тип генерации линии. В Автокаде, он всего один (хотя может быть что-то и поменялось в последних версиях?).
Потом через запятую идёт собственно описание штриховки, 1 – сплошная линия длинной в одну условную единицу чертежа, -1 – пропуск в ту же единицу. В описании могут использоваться так же буквы и символы в формате .shx
Тут можно посмотреть небольшой пример с несколькими типами линий для автокада.
2. Как получить сумму длин линий
Скачиваем GeomProps, распаковываем, добавляем в автокад с помощью команды _appload, выбрав подходящую версию плагина. Делается это один раз, после чего GeomProps загружается автокадом автоматически. Теперь в стандартных свойствах автокада (ctrl+1) у вас появится новая группа для всех линейных объектов:
Geometrical properties:
Area (total) — сумма площадей выбраных объектов.
Volume (total) — сумма объемов выбраных объектов
Length (total) — сумма длинн выбраных объектов
И еще одно свойство — Linear scale Factor — множитель для всех трёх свойств выше. Т.е. можно домножить например на 0.001 чтобы получить длину в метрах если вы работаете на чертеже в масштабе 1:1.
3. Создадим небольшую ведомость с суммами длин в виде таблицы по типу линий
В этом нам поможет небольшая LISP утилита от Lee-Mac — LenCal калькулятор сумм длин линий.
Загружаем утилиту, с помощью команды _appload добавляем её в автокад.
И добавляем в чертёж таблицу в которой в одной колонке будут названия типов линий (именно поэтому имеет смысл создать линии с нормальным названием) а в другой их общая длинна на чертеже.
Другие материалы по теме Автокад
Михаил AutoCAD, tips&tricks arx, AutoCAD, HowTo, lin, lisp, tips&tricks, Автокад
Этот сайт использует Akismet для борьбы со спамом. Узнайте как обрабатываются ваши данные комментариев.
Как в Автокаде посчитать площадь

Знать площадь фигуры в Автокаде на разных этапах работы является необходимым условием создания проекта. Поэтому, в этой статье рассмотрим, как в Автокаде измерить площадь, а также затронем основные нюансы, связанные с этим вопросом.
В первую очередь, советую ознакомиться с видео-материалом, в котором я рассматриваю специфический, но в то же время самый рациональный способ определения площади для объектов любой формы. Суть данного подхода, лежит в том, чтобы определить площадь штриховки в Автокаде, которая и будет соответствовать искомому параметру для нужного контура (см. урок про площадь в Автокаде 2014).
Как найти площадь в Автокаде стандартным способом
Определить площадь в Автокаде можно с помощью стандартного инструмента, который расположен на вкладке «» – панель «Утилиты» – вниз спадающий список «Измерить» – команда «Площадь» (см. рис.).
РИС Инструмент площадь AutoCAD ОПИСАНИЕ Посчитать площадь фигуры в Автокаде можно с помощью стандартного инструмента
РИС Площадь и периметр в Автокаде ОПИСАНИЕ Значения обмеряемого объекта в AutoCAD отображаются в Журнале командной строки
Тут особый интерес представляют субопции команды «Площадь»:
- оБъекты – для отображения площади нужно указать контур замкнутой фигуры;
- Добавить площадь – позволяет подсчитывать площадь сразу нескольких объектов. Для этого, нужно активировать данную субопцию, после чего здесь же обратиться к параметру «объекты» и в графическом поле выбрать замкнутые фигуры.
ПРИМЕЧАНИЕ: Читайте про то, как в AutoCAD объединить объекты в цельные 2D примитивы.
Вычесть площадь – действие противоположное. Позволяет убрать объекты из ранее выбранных для подсчета общей площади.
Как изменить единицы измерения площади
Итак, как в Автокаде померить площадь мы уже знаем, однако, значения отображаются в мм2 и это не очень удобно. Для того, чтобы перевести их в привычные для нас м2 воспользуемся быстрым калькулятором. Для этого достаточно в свободном месте графического пространства нажать ПКМ и выбрать «БыстрКальк» (см. рис.).
РИС Вызов Быстрого калькулятора AutoCAD ОПИСАНИЕ В свободном месте графического пространства Автокада нажать ПКМ и выбрать «БыстрКальк»
Журнал командной строки можно несколько увеличить, путем растягивания его границ с помощью мышки. Далее находим нужное значение площади/периметра, копируем его (Ctrl+C) и вставляем значение в калькулятор. Здесь следует немного поработать со списком «Преобразование единиц» (см. рис.).
РИС Работа с быстрым калькулятором в AutoCAD ОПИСАНИЕ Скопируйте значение из командной строки Автокада в калькулятор
Нажав на знак «+» возле «Преобразование единиц» нужно установить «Тип единиц», выбрав из списка «Площадь», а также изменить значение поля «Преобразовать из» на «Квадратные миллиметры». Чтоб преобразуемые значения отобразились в соответствующем поле, достаточно просто щелкнуть ЛКМ внутри этого поля (см. рис.).
РИС Преобразование единиц с помощью быстрого калькулятора AutoCAD ОПИСАНИЕ В Автокаде нужно установить «Тип единиц»-«Площадь» и изменить значение поля «Преобразовать из» на «Квадратные миллиметры»
Как видите, при таком подходе, преобразование единиц площади из мм2 в м2 выполняется автоматически.
Как узнать площадь в Автокаде через свойства объекта
На самом деле, подсчет площади в Автокаде выполняется автоматически и для стандартных замкнутых примитивов, таких как окружности, прямоугольники или, что намного интереснее, полилинии, создающей контур, данное значение можно посмотреть в палитре «Свойства» (горячая клавиша Ctrl+1).
ПРИМЕЧАНИЕ: Преобразование единиц площади из мм2 в м2 можно осуществлять путем вызова быстрого калькулятора, нажав на соответствующую кнопку в поле «Площадь» (см. рис.). Сам принцип аналогичен вышеописанному.
РИС Значение площади для замкнутого объекта в AutoCAD ОПИСАНИЕ Измерение площади в Автокаде можно не выполнять. Достаточно посмотреть это значение в свойствах замкнутого объекта.
Площадь в Автокаде 2013 и 2015. Есть разница?
Как рассказывалось ранее, существенных изменений программа претерпела начиная с 2009 версии (читать подробнее про версии AutoCAD). Поэтому, площадь в Автокаде 2012 -2015 версии, так же как и 2009-2010 определяется по одному и тому же принципу, описанному выше.
Как видите, простейшие расчеты в Автокаде выполняются автоматически , а их значения можно посмотреть в свойствах объекта. Теперь вы знаете, как определить площадь в Автокаде и преобразовать это значение в удобные для вас единицы измерения.
Читать далее…
Как определить площадь в Автокаде
Одним из обязательных условий успешной работы в программе AutoCAD является понимание того, как рассчитать или измерить площадь фигуры. Померить или узнать площадь (далее в сокращении «S» или «Area») можно у круга, эллипса, многоугольника, полилинии или 3D объекта, в зависимости от выбранного будет зависеть отображаемая информация:
- «Круг» и «Разомкнутые фигуры» – «S» и длина окружности;
- «Эллипс, замкнутый сплайн, многоугольник» – «S» и периметр;
- «Полилиния» – «S», ограниченная осевой линией.
Стоит выделить три основных способа того, как можно посчитать площадь в Автокаде.

Площадь в Автокаде можно рассчитать несколькими способами
Через свойство объекта
Итак, как определить площадь в Автокаде? Так как площадь фигуры программа считает автоматически, посмотреть необходимые значения можно в палитре «Свойства», предварительно выделив нужную область. 
- Для того чтобы открыть данное меню, нажмите «Ctrl+1».
- Далее, найдите раздел «Геометрия», там и будут указаны требуемые значения, но также в квадратных миллиметрах, для быстрого вызова калькулятора кликните по иконке «Калькулятор».

В качестве альтернативы можно воспользоваться панелью «Быстрые свойства», применяется по тому же принципу – выделить область и нажать на одноимённую кнопку на панели или комбинацию клавиш «ctrl+shift+p».
По умолчанию строки с нужными данными в меню «Быстрые свойства» нет, в связи с этим потребуется добавить её вручную, для этого:
- Откройте меню «Параметры», далее – «Адаптация».
- В открывшемся окне «Адаптация пользовательского интерфейса» в крайнем правом столбце в блоке «Геометрия» установите флажок в строке «Area».
- Нажмите «Применить» и «ОК».
Инструмент «Площадь»
- На панели выберите вкладку «Главная», далее «Утилиты», а в выпадающем списке нажмите «Измерить» и щёлкните по строке «Площадь».
- Далее, укажите все точки по периметру рисунка.
- В журнале командной строки находится значение и периметра, правда, по умолчанию указывается в квадратных миллиметрах.
Для того чтобы это изменить на более привычные для работающих с объёмными объектами квадратные метры, правой кнопкой мышки вызовите всплывающее меню и выберите «БыстрКальк». Далее, в строку ввода скопируйте полученные раннее цифры и перейдите в раздел «Преобразование единиц».

Теперь отметьте следующее:
- «Тип единиц» – «Площадь»;
- «Преобразовать из» – «Квадратные миллиметры»;
- «Преобразовать в» – «Квадратные метры»;
- в завершение нажмите на кнопку «Применить».
Для сохранения последних измерений используйте переменную «AREA», для периметра «PERIMETER».

Использование штриховки
Данный способ максимально прост и является самым популярным среди пользователей программы Автокад, потому что требуется выполнить лишь следующие действия:
- Заполните штриховкой область. Штриховка должна наноситься на какой-то определённый объект. Если же штриховкой будут заполнены несколько фигур или областей, «S» суммируется. Это к слову, ответ к вопросу о том, как узнать или как найти площадь нескольких фигур сразу. Выбор штриховки, её внешний вид и остальные параметры подбираются лично вами, на точность определения они никак не влияют.
- Вызовите уже упомянутое ранее «Свойство», нажав «ctrl+1».
- И всё в том же блоке «Геометрия» и можно ознакомиться с подсчётами площади штриховки, заполняемой фигуры или объектов.
Полезные команды и переменные
Полезные команды и переменные:
- «БЫСТРКАЛЬК» – вызов калькулятора;
- «ДИСТ» – для определения расстояния между точками;
- «DISTANCE» – для хранения значений, полученных с применением не особо сложной команды «ДИСТ»;
- «ИЗМЕРИТЬГЕОМ» – для измерения расстояния выделенных объектов или точек;
- «ОКНОСВ» – для вызова свойств объектов;
- «AUPREC» – управление точностью отображения координат;
- «МАСС-ХАР» – для проведения расчётов массовых характеристик 2D областей или 3D тел.
https://youtube.com/watch?v=_xXjDdthVCg
Тем, у кого всё же остались теоретические сомнения о том, как вычислить площадь в Автокаде, следует проверить их на практическом применении, где можно будет убедиться, что все эти действия элементарны.
Использование команды «Площадь» в AutoCAD
В программе AutoCAD есть удобная команда «Площадь», которая позволяет быстро и легко находить площадь фигур на чертеже. Эта команда очень полезна при работе с архитектурными планами, проектировании и других задачах, где требуется точное определение площади различных объектов.
Для использования команды «Площадь» необходимо выполнить следующие шаги:
- Откройте чертеж в AutoCAD, на котором нужно найти площадь определенного объекта.
- Выберите вкладку «Плагин» в верхней панели меню и найдите в ней команду «Площадь».
- Как только вы выберете команду «Площадь», программа попросит вас выбрать объект, площадь которого нужно найти. Выберите нужный объект, нажав на него левой кнопкой мыши.
- После выбора объекта вам будет показано окно с информацией о его площади.
Кроме того, команда «Площадь» имеет ряд дополнительных возможностей, которые могут пригодиться при работе с чертежами:
| Команда | Описание |
|---|---|
| ВнешняяПлощадь | Находит площадь внешнего контура выбранного объекта. |
| ВнутренняяПлощадь | Находит площадь внутренних контуров выбранного объекта. |
| СуммаПлощадей | Находит сумму площадей всех выбранных объектов. |
Использование команды «Площадь» в AutoCAD позволяет вам быстро и точно находить площадь различных объектов на чертеже. Это экономит время и упрощает работу при проектировании и других задачах, где требуется определение площади объектов.
Специфический способ — Как в Автокаде посчитать площадь.
У многих пользователей в процессе работы с чертежами возникают трудности с подсчетом площадей в Автокаде. Есть конечно специализированный инструмент — «Площадь в AutoCAD», но он не всегда бывает результативным и быстрым.
В данном уроке я хочу Вам показать способ, к которому прибегаю сам. Он позволяет не только измерить площади любых фигур и контуров, но и отслеживать площади при изменении этих объектов.
Также в сегодняшнем видео мы рассмотрим, как работают стандартные инструменты измерения площадей в AutoCAD. И научимся переводить квадратные миллиметры в квадратные метры с помощью быстрого калькулятора.
В данном видео уроке мы поговорим об удобных способах подсчета площадей. В Автокаде есть множество инструментов для определения площадей и выбор остается за нами. Для начала на примере абстрактной фигуры рассмотрим стандартные инструменты подсчета площадей. Они располагаются на вкладке Главная, на панели Утилиты. Нажимаем на кнопку Разметить, выбираем Площадь.

Из перекрестия исчез квадратик и это значит, что опция активна и мы можем работать
Теперь обращаем свое внимание на командную строку, в которой нас просят указать первый угол точки, т. е
чтобы измерить площадь, нам необходимо указать все точки объекта. По окончании нажимаем Enter и устремляем свой взор на журнал командной строки. Видим, что площадь указана огромным числом, но не пугайтесь, это в квадратных миллиметрах, так же рядом указано значение периметра.

Теперь рассмотрим суббопции подсчета площадей. Выбрав инструмент площадь, в командной строке мы увидим такие команды: Объект, Добавить площадь, Вычесть площадь, Выход.

Итак, команда Объект позволяет нам выбирать замкнутый примитив (поллилиния, четырехугольник, многоугольник, окружность), наводим на полилинию и нажимаем правой кнопкой мыши. В журнале командной строки появляется значение площади и длины, т.е. периметра измеряемого объекта.
Теперь рассмотрим способ, позволяющий измерить площадь нескольких объектов. Выбираем инструмент Площадь, далее в субопциях Добавить площадь, Объект
После того, как мы выделили объекты, площадь которых измеряем, обратим наше внимание на журнал командной строки, в котором у нас указана площадь последнего объекта, а также общая площадь
Далее мы нажимаем Enter и видим в командной строке опцию Объект, которую мы уже рассмотрели и опцию Вычесть Площадь, которая позволит нам убрать значение площади объекта, который нам не нужен. Нажимаем Вычесть площадь, далее Объект и выбираем ненужный нам объект.
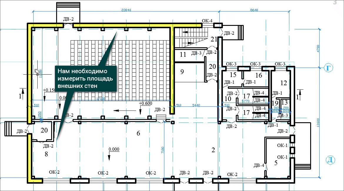
Теперь рассмотрим более динамичный и интерактивный подход определения площади. У нас есть план 1 этажа, и мы хотим измерить площадь наружних стен, которые построены при помощи полилиний и отдельных отрезков.

Но при помощи стандартной утилиты это сделать будет довольно проблематично и времязатратно. Для начала мы изолируем слой Стены наружние, выделяем полилинию, при помощи которой построены наши стены и на вкладке Главная, на панели Слои выбираем опцию Изолировать.
Теперь мы измерим площадь при помощи ассоциативных штриховок, которые расположу на непечатный и невидимый слой. Но т.к. заготовленного слоя у меня нету, то я воспользуюсь нулевым слоем
Установлю его текущим, на вкладке Создать штриховки вибираем штриховку и обращаем внимание на кнопку Ассоциативный, она должна быть активна
Далее наносим штриховку на те места, которые нам нужны, нажимаем Enter, выделяем нанесенную штриховку и находим в ее свойствах значение площади.

Она указана в квадратных миллиметрах и для того, чтобы ее перевести в метры, нажимаем на значок калькулятор, в появившемся окне находим опцию Преобразование единиц.

В настройках указываем Тип единиц Площадь, Преобразовать из выбираем Квадратные миллиметры и закрываем наш калькулятор.

Т.к. штриховка у нас ассоциативная, то при изменении стен изменяется и площадь. Но есть один нюанс, при разрыве контура измеряемого объекта, наша штриховка теряет ассоциативность и следовательно при изменении размера объекта площадь изменяться не будет. Поэтому, если мы хотим уменьшить или увеличить наш объект, то я советую использовать инструментом Растянуть, который находится на вкладке Главная.
Освойте профессию проектировщика
Научитесь быстрому черчению, освоите прикладное 3D, автоматизируете создание ведомостей и спецификаций.




























